1 bed Apartment for Sale - Image 1

1 bed Apartment for Sale

FOR SALE
235,0004,273/m\u00B2
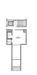
1 Bed
1 Bath
55 m\u00B2
apartment

Reference: 815448

Listed by

B

Belair

ALEXIA HATHOUT

Call AgentWhatsApp AgentView on Belair

Quick Facts

Type
apartment
Listing
sale
Bedrooms
1
Bathrooms
1
Size
55 m²
Agency
Belair

Interested in this property?

Send an inquiry and the agent will contact you.

Your info is shared with the listing agent only.

Need a Mortgage?

Estimated monthly payment: 627/mo

Get Mortgage Quote

*Estimate based on 80% LTV, 4% rate over 25 years

Protect Your Investment

Get home insurance from Malta's trusted providers

Get Insurance Quote
1 bed Apartment for Sale | Darna