Industrial for rent - Image 1

Industrial for rent

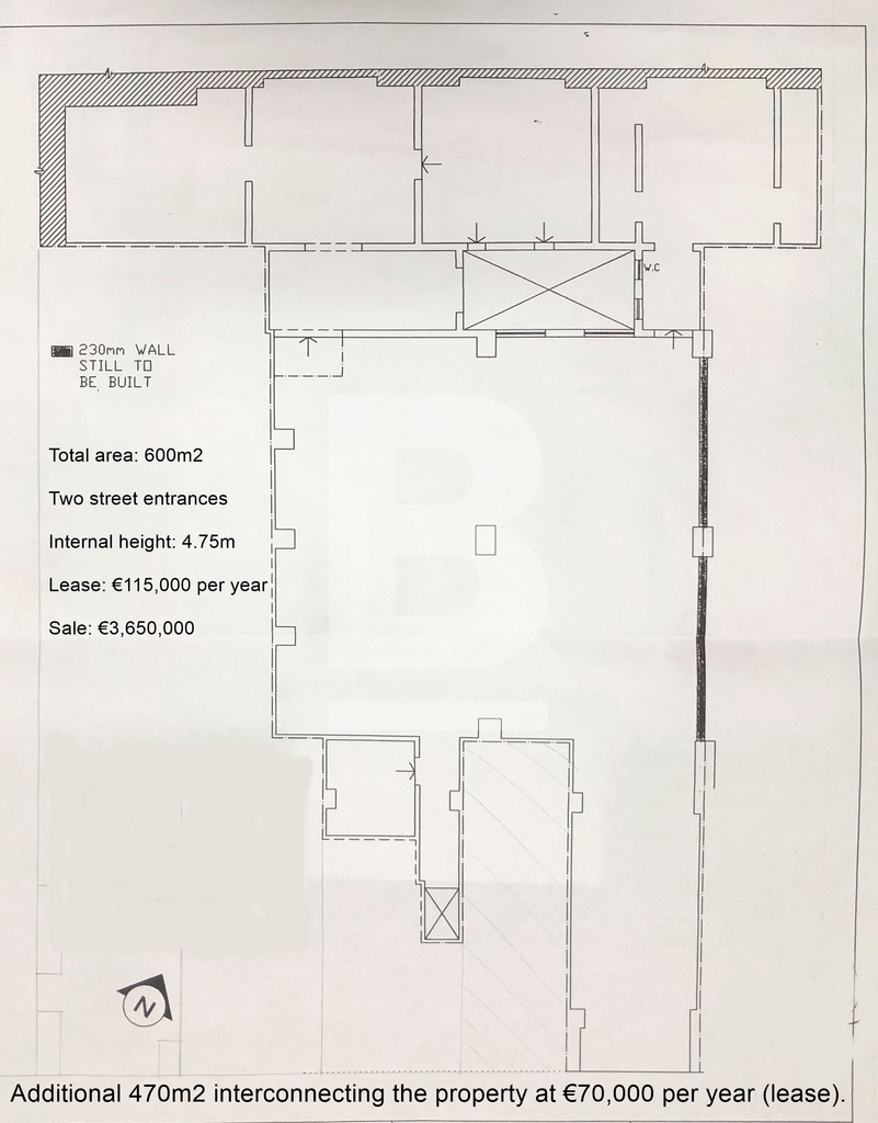
FOR RENT
115,000/mo
2 Beds
N/A
apartment

Reference: 305729

Listed by

B

Belair

MARCUS LAURI

Call AgentWhatsApp AgentView on Belair

Quick Facts

Type
apartment
Listing
rent
Bedrooms
2
Agency
Belair

Interested in this property?

Send an inquiry and the agent will contact you.

Your info is shared with the listing agent only.

Protect Your Investment

Get home insurance from Malta's trusted providers

Get Insurance Quote
Industrial for rent | Darna