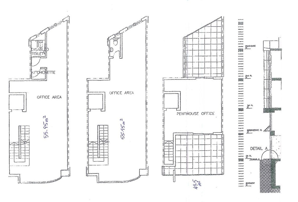
Office for Sale - Image 1

Office for Sale

FOR SALE
1,810,000
2 Beds
N/A
office

Reference: 307388

Listed by

B

Belair

MARCUS LAURI

Call AgentWhatsApp AgentView on Belair

Quick Facts

Type
office
Listing
sale
Bedrooms
2
Agency
Belair

Interested in this property?

Send an inquiry and the agent will contact you.

Your info is shared with the listing agent only.

Need a Mortgage?

Estimated monthly payment: 4,827/mo

Get Mortgage Quote

*Estimate based on 80% LTV, 4% rate over 25 years

Protect Your Investment

Get home insurance from Malta's trusted providers

Get Insurance Quote
Office for Sale | Darna